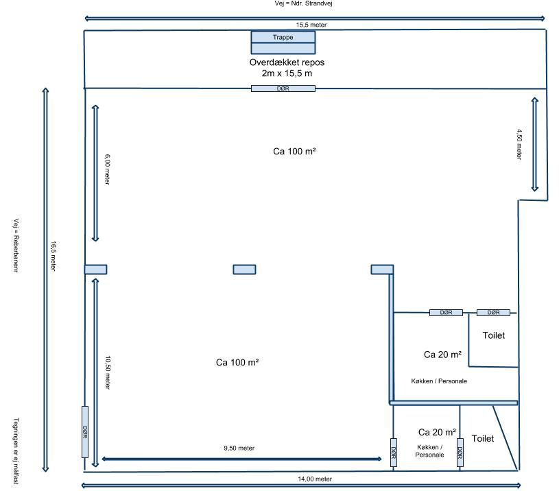
Se videon til højre, og får en gennemgang af lokalet indvendigt. Lokalet fremstår lyst og flot, med nye gulve overalt. Man vil nemt kunne opdele lokalet i mindre rum/kontorer hvis det ønskes. Til lokalet er 2 x toiletter, samt 2 tekøkkener der kan anvendes til frokoststure eller mindre mødelokale.
Der er til lokalerne adgang fra forsiden af bygningen, der ligger ud til Ndr. Strandvej. Samt adgang fra siden af bygningen der ligger på Reberbanen. Udlejes til butik eller liberalt erhverv.
Bemærk at lokalet ikke udlejes til salg af uemballerede fødervarer, produktion af fødevarer, restaurant/cafe og lignende.

ADDRESS:
HUMMERVEJ 11
DK-8400 EBELTOFT
CVR: 2839 2818
Kontakt:
Telefon +45 6075 1042
MAIL:
Klik her for at sende besked